
Creating a successful renovation begins with clear, accurate and thoughtfully considered plans. Our architectural drafting services provide the technical foundation your project needs — ensuring every detail is documented, coordinated and ready for construction.
We produce precise drawings that reflect your vision, meet compliance requirements and guide a seamless build from start to finish. Whether you’re renovating a kitchen, extending your home or undertaking a complete transformation, our drafting team works closely with you to translate ideas into build-ready documentation.
• Concept development and spatial planning
Refining the layout, flow and functionality of your space before detailed design begins.
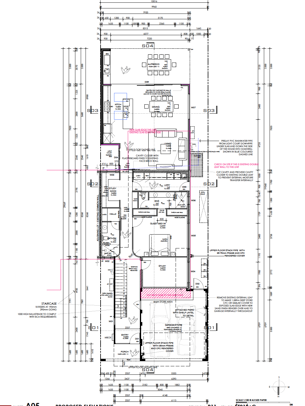
• Detailed architectural drawings
Floor plans, elevations, sections and joinery details crafted with accuracy and clarity.
• Compliance-ready documentation
Plans designed in line with local council requirements and Australian Standards to support approvals.
• Coordination with designers, consultants and trades
Ensuring your plans align seamlessly with structural, interior and construction elements.
• Revision and refinement
We incorporate feedback and design adjustments to produce a set of drawings that truly support your vision.
High-quality drafting reduces delays, cost variations and onsite miscommunication. Clear drawings provide your builder with the guidance needed to execute your renovation with precision — resulting in a smoother process and a more refined final outcome.
From small interior updates to large-scale alterations and additions, our drafting services support projects across Perth’s western suburbs. We tailor every plan to your home’s architecture, your lifestyle and the level of detail required for a high-quality build.
